CASA URQUIZA

Previous slide
Next slide

Año: 2025

Ubicación: Paraná

Trabajos realizados: Proyecto

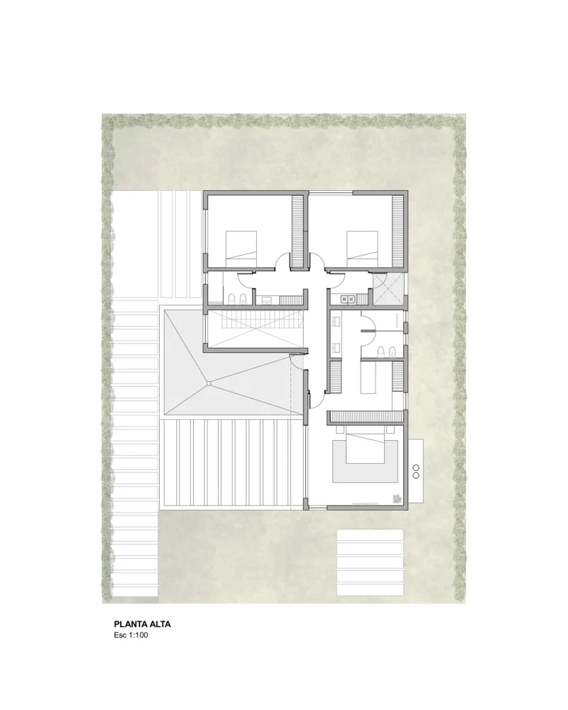
Memoria descriptiva: Casa Urquiza se erige en la naturaleza, rodeada de simbolismos de lo que fue el Parque que le da su nombre. La planta baja nuclea el sector social, con un ingreso marcado que lleva al recorrido orgánico entre interior y exterior. Un segundo ingreso facilita la cotidianidad y oculta lo privado, dejando entrever la simpleza del programa. En la planta alta, el pasillo distribuidor conduce a la terraza se destaca por su amplitud y la posibilidad de acceder a ella desde el recorrido general, respetando la privacidad de los dormitorios.

Casa urquiza – Planta baja_page-0001
Casa urquiza – Planta alta_page-0001